Studio Erre

NAVIGLIO GRANDE - PARTICOLARE TRE LOCALI D'EPOCA

Home > Ricerca > Dettaglio immobile
Rif: AFF25VITRI06

MILANO

MILANO - zona Navigli - Darsena
Condividi Linkedin Whatsapp Stampa
Stampa

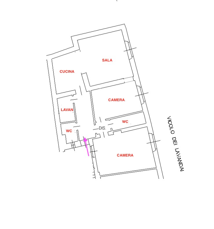
NAVIGLIO GRANDE - VICOLO LAVANDAI. In un anfratto del Naviglio Grande, nello storico vicolo recentemente restaurato, dov' è rimasta intatta l´atmosfera di un tempo, proponiamo in locazione un particolare appartamento di circa 100 mq. La soluzione è arredata, ristrutturata recentemente e successivamente mai abitata, è composta da ingresso, corridoio, ampia zona giorno con suggestivo affaccio sul vicolo, cucina a vista dotata di elettrodomestici e angolo pranzo. Spaziosa camera con letto matrimoniale e armadiatura. Seconda camera da arredare in base alle esigenze dell'inquilino. Bagno padronale finestrato con box doccia in cristallo, secondo bagno con ulteriore box doccia. Locale lavanderia/ripostiglio con lavatrice. Ottime condizioni interne: pavimentazione in grès, impiantistica a norma, infissi in doppi vetri, travi a vista. Riscaldamento autonomo. Richiesta Euro 1.900,00 + euro 100,00 di spese condominiali.

Consistenze

Descrizione Superficie Sup. comm.
Principali
Immobile - 1° piano 100 Mq 100 Mqc
Totale 100 Mqc

Richiedi maggiori informazioni

Autorizzazione al trattamento dei dati personali+
Dichiaro di aver letto l'informativa sulla privacy ed accetto le condizioni d'utilizzo del servizio.
Riempi il campo con il codice riportato nell'immagine*
Codice Captcha
Chiamaci Contattaci