Rif: AFF25VITRI06
MILANO
MILANO - zona Navigli - Darsena
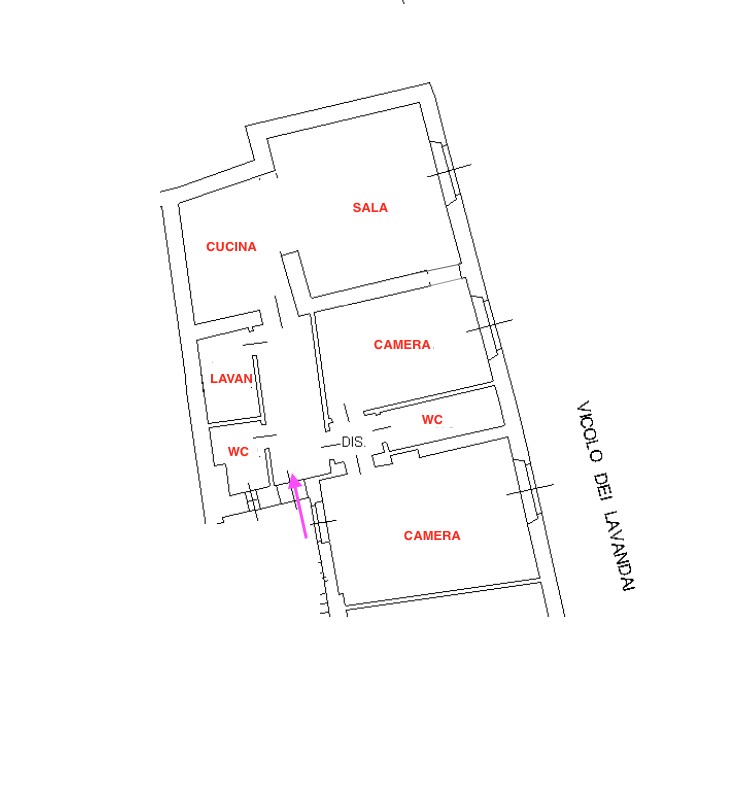
NAVIGLIO GRANDE - VICOLO LAVANDAI. In un anfratto del Naviglio Grande, nello storico vicolo recentemente restaurato, dov' è rimasta intatta l´atmosfera di un tempo, proponiamo in locazione un particolare appartamento di circa 100 mq. La soluzione è arredata, ristrutturata recentemente e successivamente mai abitata, è composta da ingresso, corridoio, ampia zona giorno con suggestivo affaccio sul vicolo, cucina a vista dotata di elettrodomestici e angolo pranzo. Spaziosa camera con letto matrimoniale e armadiatura. Seconda camera da arredare in base alle esigenze dell'inquilino. Bagno padronale finestrato con box doccia in cristallo, secondo bagno con ulteriore box doccia. Locale lavanderia/ripostiglio con lavatrice. Ottime condizioni interne: pavimentazione in grès, impiantistica a norma, infissi in doppi vetri, travi a vista. Riscaldamento autonomo. Richiesta Euro 1.800,00 + euro 100,00 di spese condominiali.
Consistenze
| Descrizione | Superficie | Sup. comm. |
|---|---|---|
| Principali | ||
| Immobile - 1° piano | 100 Mq | 100 Mqc |
| Totale | 100 Mqc | |






